400快不限次数联系方式,免费同城空降服务,空降24小时上门服务,如何寻找接私活的女生微信

欢迎来到深圳南艺管业官网!专营国标美标日标CPVC-UPVC-FRP-PPH等工业管材/胶水/阀门销售,型号齐全,欢迎询价!

深圳南艺管业有限公司

(国标美标日标)化工.给水CPVC-UPVC-FRP-PPH管材厂家派遣技术现场指导&全程一对一追踪服务

24小时询价热线:198-8628-3953

CPVC化工管材
您的位置: 首页 > 产品中心 > CPVC化工管材

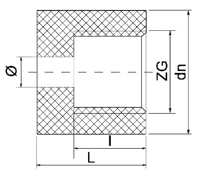
CPVC管件 仪表接头_内丝补芯_变径


全国热线

198-8628-3953

仪表接头(图1)

订购留言

24小时咨询热线

198-8628-3953
主站蜘蛛池模板: 南漳县| 陆河县| 五峰| 邢台市| 芷江| 沈丘县| 安国市| 威海市| 五家渠市| 奈曼旗| 辰溪县| 迁西县| 建瓯市| 九龙坡区| 甘德县| 桦南县| 玉环县| 万盛区| 海南省| 威海市| 甘肃省| 惠东县| 海南省| 内乡县| 荣昌县| 顺昌县| 浑源县| 苏州市| 社会| 息烽县| 桃源县| 外汇| 湖口县| 苍南县| 临夏市| 那曲县| 苍南县| 聂拉木县| 纳雍县| 磴口县| 广宁县|